SC-211-668
Продам офисное здание
Г. Київ, Николая Михновского бул.38
7 260 000 $
+380 (67) 777 - 17 28
+380 (63) 573 - 43 - 34
ОПИС
Кімнат
1/12
Поверх
Поверх
5500 m2
Площа
Площа
1 320 $
Ціна за m2.
Ціна за m2.
Під'їзна дорога: асфальт
Дата оновлення інформації: 26-06-2025
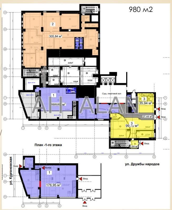
Престижний офіс у діловому центрі Києва | вул. Миколи Михновського, 38 Пропонується офісна нерухомість для великої компанії у самому серці Печерського району. З 1 по 7 поверхи, площа 5500 м2. Будівля розташована в оточенні офісів міжнародних корпорацій, наукових установ і державних організацій. Перша лінія, активний пішохідний і транспортний потік, зручний доступ з будь-якої частини міста. До метро Звіринецька (Дружби народів) — всього 300 метрів Будівля — колишній VIP-корпус банку з депозитарієм, сейфовими приміщеннями, операційними залами, офісами. 4 рівні Кілька фасадних входів Кабінетне планування Приміщення з ремонтом після орендаря Підлога — ламінат або плитка, стелі — гіпсокартон або армстронг. Парковка на 15 місць.
Дата оновлення інформації: 26-06-2025
Престижний офіс у діловому центрі Києва | вул. Миколи Михновського, 38 Пропонується офісна нерухомість для великої компанії у самому серці Печерського району. З 1 по 7 поверхи, площа 5500 м2. Будівля розташована в оточенні офісів міжнародних корпорацій, наукових установ і державних організацій. Перша лінія, активний пішохідний і транспортний потік, зручний доступ з будь-якої частини міста. До метро Звіринецька (Дружби народів) — всього 300 метрів Будівля — колишній VIP-корпус банку з депозитарієм, сейфовими приміщеннями, операційними залами, офісами. 4 рівні Кілька фасадних входів Кабінетне планування Приміщення з ремонтом після орендаря Підлога — ламінат або плитка, стелі — гіпсокартон або армстронг. Парковка на 15 місць.
0(67) 777-17-28
01001, м. Київ, вул. Шота Руставелі, 4 

















































